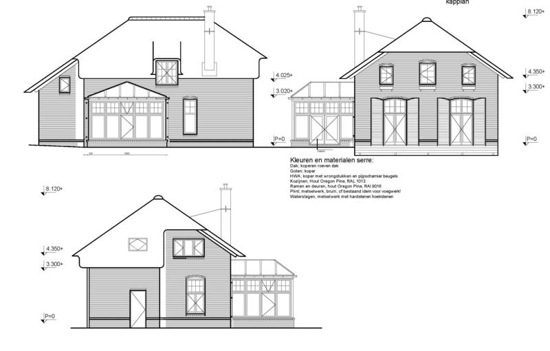
klassieke tuinkamer

Historische woning krijgt uitbouw, met voor de bewoners een schitterend uitzicht op polderlandschap. Het perfecte plekje om te zitten als het buiten te koud is. Maar, zoals je ziet, ook heel fijn in de zomer. Onder begeleiding van Michiel Magis architectuur.